A black silhouette of a telephone on a white background.
(214) 304-2850
A black and white envelope icon on a white background.
archline@archline.com
24 HOURS PER DAY 365 DAYS PER YEAR
HOME
TEAM
SERVICES
Architectural & Engineering Consulting
Sustainable Design & Smart Building Solutions
CAD/Revit Drafting & System Design
PORTFOLIO
TABLE OF CONTENT
ARCHLINE RECORD
Call Us
Call Us
HOME
TEAM
SERVICES
Architectural & Engineering Consulting
Sustainable Design & Smart Building Solutions
CAD/Revit Drafting & System Design
PORTFOLIO
TABLE OF CONTENT
ARCHLINE RECORD
Get in Touch
(214) 304-2850
archline@archline.com
Low Density Retirement Home
HOME
Country Club Building
Low Density Retirement Home
Country Club Building
Lower Level Life Safety Plan
See Details
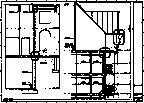
First Floor Master Building Plan
See Details
Second Floor Master Building Plan
See Details
Third Floor Master Building Plan
See Details
Fourth Floor Master Building Plan
See Details
Master Roof Plan
See Details
Building Elevations
See Details
Wall Sections
See Details
Wall Sections 2
See Details
Details
See Details
Stair Sections
See Details